
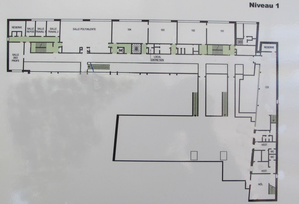
Plan du niveau 1 du bâtiment ouest (salles de cours).
Identification du patrimoine
Titre courant |
Lycée Des Menuts |
---|---|
Légende |
Plan du niveau 1 du bâtiment ouest (salles de cours). |
Dénomination |
lycée |
Informations sur l’image
Référence | IVR72_20193301336NUC2A |
---|---|
Aire d'étude | Nouvelle-Aquitaine |
Type de support | phototype numérique |
Diffusion | communication libre, reproduction soumise à autorisation |
Copyrights | (c) Région Nouvelle-Aquitaine, Inventaire général du patrimoine culturel |
Liens documentaires
Cette image apparait dans le dossier |
---|
Chargement des enrichissements...