Historique
Le terrain sur lequel se trouve la maison est donné par la famille noble des Durfort à Charles Petit, ancien régisseur de leur domaine de Cour-de-Pile près de Bergerac, en 1756. Mais c'est sans doute dans les années 1770 ou au début de la décennie suivante que celui-ci, devenu « bourgeois » de Bergerac, troisième consul de la ville et directeur des Postes aux Lettres, y fait bâtir une maison neuve : un plan de la rue Neuve d'Argenson, certifié, signé et daté par Charles Petit lui-même du 10 février 1785 et qui la représente, nous fournit un terminus ante quem à la construction. Charles Petit est inhumé le 28 novembre 1791. À partir de mentions textuelles et de la représentation en élévation datée de 1785, on comprend que la maison se composait à l'origine uniquement d'un rez-de-chaussée surélevé.
Marié à l'aînée des filles de Charles Petit, Marie-Jeanne (parfois appelée Laurence dans certains actes), Jean-Baptiste Gouzot hérite donc de la propriété à la mort de son beau-père en 1791. Il meurt à Bergerac le 19 juillet 1822, après avoir été président du Tribunal de Bergerac et maire de Paleyrac. Le 19 novembre 1830, sa veuve fait une donation des biens à leurs enfants : la propriété est divisée, la maison et une partie du jardin restant entre les mains de la veuve et de ses filles, la partie nord avec le jardin de ce côté revenant au fils aîné du couple, Jean-Charles-Joseph Gouzot. C'est cette situation qu'enregistrent le plan cadastral ancien et l'état de section respectivement datés de 1831 et 1833.
C'est sans doute à Jean-Charles-Joseph Gouzot, après avoir hérité de sa mère en 1833, que l'on doit une seconde phase de travaux importante. Là encore, deux documents fournissent le terminus ante quem aux travaux : selon les matrices cadastrales, la maison, qui présentait auparavant quatorze ouvertures (portes et fenêtres), en compte vingt-six en 1858 ; la preuve en est également donnée par la Vue panoramique de Bergerac d'Auguste Faisandier, de 1856, qui figure la maison surélevée d'un étage-attique. Un autre document fournit par ailleurs le terminus post quem à cette transformation : les balcons en fonte de fer de l'étage-attique sortent des forges de J.P.V. André, maître de forge à Paris, comme l'atteste une planche de leur catalogue paru vers 1836-1840. La fourchette chronologique de l'intervention est donc comprise entre 1836 et 1856.
Par alliances, la propriété passe ensuite entre les mains des familles Du Summier, Meslon et enfin Leydier. Abandonnée depuis une vingtaine d'années, elle s'est lentement dégradée : attaque de termites dans les bois, infiltrations des eaux de pluies qui ont éventré les parquets (principalement dans la partie nord), etc. La maison a finalement été acquise par la municipalité de Bergerac en 2019.
Détail de l'historique
Description
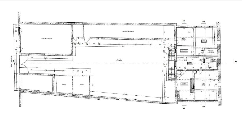
La propriété est composée d'une maison orientée nord-sud implantée sur la rue Neuve d'Argenson, face à la place de Doublet, d'une aile de dépendances en retour d'équerre sur l'arrière (au sud), sur un ancien jardin, et d'un petit pavillon en grande partie détruit (au sud-est), à l'extrémité de l'aile de dépendances, sur la rue Candillac ; un mur de clôture en moellon et chaînes en pierre de taille fait séparation avec la propriété au nord (n° 23 rue Neuve d'Argenson). Des garages contemporains complètent l'ensemble.
De plan massé double en profondeur, la maison est bâtie sur trois niveaux : un niveau de soubassement semi-enterré abritant deux caves à l'ouest et deux pièces de service à l'est, desservies par un vestibule central ; un rez-de-chaussée surélevé accueillant les anciennes pièces de réception et des bureaux, eux aussi desservis par un vestibule central ; et un étage-attique destinés aux chambres. La façade principale sur rue (ouest), symétrique, en pierre de taille, présente sept travées avec porte d'accès centrale surmontée d'un fronton en arc plein-cintre à décor de vélum ; les fenêtres du rez-de-chaussée, couvertes en arc segmentaire, possèdent un chambranle lisse continu en partie basse sur l'allège, avec appui mouluré en saillie. Côté jardin, la façade (est) est ouverte par six travées de fenêtres, la septième étant occultée par un petit pavillon carré disposé en retour d'équerre. Elle présente une maçonnerie de briques recouverte d'un enduit, seules les parties vives (le cadre des baies) étant en pierre de taille ; un perron en pierre de taille à volées convergentes permet de descendre au jardin. Le toit est couvert en tuile creuse.
À l'intérieur, la porte d'entrée débouche dans la cage d'un escalier en bois à jour central qui dessert tous les niveaux. Le niveau de soubassement comprend encore des lambris d'appui et des chambranles moulurés (cannelures) aux portes des pièces de service. Un décor peint au pochoir (une frise végétale et florale) court au-dessus du lambris sur l'enduit couvrant le reste du mur. Au rez-de-chaussée surélevé, le vestibule central possède encore deux grandes portes en plein-cintre à trumeau vitré : il dessert les pièces de réception et les bureaux du niveau, et permet de sortir directement au jardin par le perron extérieur. Le bureau (une ancienne pièce de réception) sud-ouest a conservé une grande partie de son décor intérieur : un plafond en stuc mouluré avec son porte-luminaire orné, une cheminée à manteau en marbre et hotte décorée – dans un registre amoureux : un couple d'oiseaux, une torchère embrasée, un arc et une flèche, un carquois et des branches de laurier. Le bureau d'origine, au nord-ouest, conserve un grand meuble d'attache en bois (une bibliothèque et placards fermés par des portes) recreusé d'une grande arcade centrale qui abritait probablement un cabinet ; tous les murs accueillaient des tableaux (leurs empreintes subsistent sur le textile de couvrement) ; la cheminée est à manteau en marbre et hotte décorée de chapiteaux néo-Renaissance et frise de grappes et feuilles de vigne alternées dans l'entablement.
Au sud, l'aile de dépendances (écurie, chai) se développe tout au long de l'ancien jardin ; des portes et fenêtres l'ouvrent de ce côté. À l'extrémité orientale de celle-ci subsiste un pavillon aujourd'hui en ruine ; il présente encore un fronton-pignon triangulaire et une fenêtre (murée) au nord, ainsi qu'une grande arcade à claveaux en pierre de taille à l'est.
Détail de la description
| Murs |
|
|---|---|
| Toits |
|
| Étages |
rez-de-chaussée surélevé, étage de soubassement, 1 étage carré |
| Élévations extérieures |
élévation ordonnancée |
| Couvertures |
|
| Escaliers |
|
| État de conservation |
|
Informations complémentaires
NOTE DE SYNTHÈSE
NOTE DE SYNTHÈSE
_______________________________________
MAISON LEYDIER
Située dans l'ancien faubourg oriental de la ville (dit de Cocagne), soit dans le cœur historique de la ville de Bergerac, la maison dite maison Leydier se dresse au n° 21 de la rue Neuve d'Argenson ; elle voisine directement, au nord, avec la mairie de Bergerac. Ce présent dossier a été constitué dans le cadre d'une opération ponctuelle d'urgence, la municipalité ayant pris la décision de démolir la maison Leydier dont elle est propriétaire.
Histoire*
En 1739, Sarin de Durfort, seigneur et comte de Cour-de-Pile, prend possession des biens de sa mère décédée, Elisabeth de Clermont. Ces biens comprennent notamment un « jardin » à Bergerac, en réalité une maison appelée « au Chay », avec jardin attenant, bordée à l'est par le canal du Pontet – actuelle rue Candillac –, à l'ouest par la rue Neuve d'Argenson, au nord par un petit chemin de service – devenu après élargissement rue du Pontet, maintenant rue du Professeur Pozzi – et au sud par le couvent des Filles de Notre-Dame de la Foi – transformé en hôpital civil et militaire après la Révolution, de nos jours mairie de Bergerac [1]. L'ensemble est alors affermé à un certain Jean-Baptiste Couderc.
Pour récompenser Charles Petit (1713 ?-1791), ancien régisseur de leur domaine de Cour-de-Pile pour ses bons et loyaux services, les Durfort décident de donner à celui-ci la propriété de Bergerac le 17 mai 1756 [2]. C'est sans doute dans les années 1770 ou au début de la décennie suivante que Charles Petit y fait bâtir une maison neuve : un plan de la rue Neuve d'Argenson, certifié, signé et daté par Charles Petit lui-même du 10 février 1785 et qui la représente, fournit un terminus ante quem à la construction [3]. Implantée dans la rue Neuve d'Argenson qui fait l'objet de travaux de voierie au milieu du siècle et encore après 1769 sous l'impulsion des Gontier de Biran [4] (plusieurs maisons de la rue datent de cette époque, dont une portant le millésime 1769, au n° 16), la maison offre surtout à voir sa belle façade principale en pierre de taille dans l'axe de la place du Doublet dont elle forme en quelque sorte le « fond de scène » oriental. En 1791, Charles Petit déclare encore posséder « une maison a rés-de-chaussée, écurie et jardins » [5] ; pourtant, quelque temps plus tard la même année, son gendre, Jean-Baptiste Gouzot, commissaire du roi, en est propriétaire à son tour, son beau-père y étant « en pension chez [lui] » [6] ; Charles Petit meurt subitement peu après et est inhumé le 28 novembre 1791.
Marié à l'aînée des filles de Charles Petit, Marie-Jeanne (1766-1833 ; parfois appelée « Laurence » dans certains actes [7]), Jean-Baptiste Gouzot (1754-1822) hérite donc de la propriété à la mort de son beau-père en 1791. Il meurt à Bergerac le 19 juillet 1822, après avoir été président du Tribunal de Bergerac et maire de Paleyrac [8]. Le 19 novembre 1830, sa veuve fait une donation des biens à leurs enfants : la propriété est divisée, la maison et une partie du jardin restant (temporairement) entre les mains de la veuve et de ses filles, la partie nord avec le jardin de ce côté revenant au fils aîné du couple, Jean-Charles-Joseph Gouzot (1789-1867) [9]. C'est cette situation qu'enregistrent le plan cadastral ancien et l'état de section datés respectivement de 1831 et 1833 [10]. On comprend ainsi mieux les deux portes de communication (aujourd'hui murées) encore visibles entre les deux propriétés, la première dans le niveau de soubassement de la maison (mur nord), la seconde dans le mur de clôture du jardin.
C'est sans doute à Jean-Charles-Joseph Gouzot, après avoir hérité de sa mère en 1833, que l'on doit une seconde phase importante de travaux. Là encore, deux documents fournissent le terminus ante quem : selon les matrices cadastrales, la maison, qui présentait auparavant quatorze ouvertures (portes et fenêtres), en compte vingt-six en 1858 [11] ; la preuve en est également donnée par la Vue panoramique de Bergerac d'Auguste Faisandier, de 1856, qui figure la maison surélevée d'un étage [12]. D'autre part, un autre document fournit le terminus post quem à cette modification : les balcons en fonte de fer de l'étage-attique sortent des forges de Jean-Pierre-Victor André, maître de forge à Paris (Ménilmontant), comme l'atteste la première planche de leur catalogue paru vers 1836-1840 où leur modèle est proposé à la vente. La fourchette chronologique de l'intervention est donc comprise entre 1836/40 et 1856 [13]. Cette campagne a concerné la surélévation de la maison par un étage-attique, la pose d'un nouveau toit à faibles pentes couvert de tuiles creuses, l'implantation d'un nouvel escalier dans-oeuvre central en remplacement de l'ancien pour monter à l'étage, l'érection d'un petit pavillon en retour d'équerre sur le jardin avec, au même alignement de ce côté, celle d'une aile de dépendances comprenant de nouvelles écuries (la maçonnerie des deux constructions est continue et homogène) et d'un pavillon à l'extrémité, au sud-est ; le réagencement et l'aménagement des pièces (cheminées, revêtement des murs, plafonds, chambranles de portes, lambris, etc.). Cette dernière campagne de travaux a donné à la maison sa physionomie actuelle. Né dans la maison, l'héritier de Jean-Charles-Joseph, Jean-Camille Gouzot (1830-après 1901), en est propriétaire à partir de 1867 ; il est maire de Bergerac de 1871 à 1875 [14].
Par alliances, la propriété est ensuite passée entre les mains des familles Du Summier (ou Dussumier), Meslon (en 1910) et enfin Leydier (en 1917), qui lui a donné son nom [15]. La maison a finalement été acquise par la municipalité de Bergerac en 2019.
Le commanditaire, Charles Petit*
Né dans le Lot (d’où sont originaires les Durfort), Charles Petit devient le régisseur du château de Cour-sur-Pile à une date indéterminée. En 1763, il épouse Rose Montaigne, fille du directeur des Postes à Bergerac Jean-Baptiste Montaigne ; il succède à la charge de son beau-père quelques temps plus tard. En 1766, « Charles Petit, bourgeois de Bergerac », obtient une commission pour travailler au bureau des Aides en qualité de surnuméraire. En 1769, il fait une demande en bourgeoisie auprès de la municipalité. Le 17 juillet 1776, par ordre du roi Louis XVI donné à Marly le 30 juin, le maire de Bergerac installe dans la charge de troisième consul, « Charles Petit, directeur de la Poste » [16] ; celui-ci est troisième consul de Bergerac de 1777 à 1790. Il meurt en 1791 et est inhumé le 28 novembre.
Description et analyse architecturale
La maison fait partie de la typologie à corps de logis sur rue. De fait, la propriété est composée d'une maison orientée nord-sud implantée sur la rue Neuve d'Argenson, face à la place du Doublet, d'une aile de dépendances en retour d'équerre sur l'arrière (au sud), sur un ancien jardin, et d'un petit pavillon en grande partie détruit (au sud-est), à l'extrémité de l'aile de dépendances, sur la rue Candillac ; un mur de clôture en moellon et chaînes en pierre de taille fait séparation avec la propriété au nord (n° 23 rue Neuve d'Argenson). Des garages contemporains, adossés au mur de clôture nord du jardin, complètent l'ensemble.
Le plan général
Le plan de 1783 et l'élévation de 1785 renseignent sur les dispositions à l'origine. Située dans le faubourg oriental aux portes de la ville, la petite propriété (d'environ 1400 m²) était mitoyenne du couvent des Filles de Notre-Dame de la Foi de Bergerac au sud. Elle comprenait alors la maison sur rue, à l'ouest, à laquelle était adossé au nord, au même alignement sur la rue Neuve d'Argenson, un bâtiment bas crénelé, ouvert sur la rue par deux portes – sans doute les écuries mentionnées dans les textes. Celles-ci étaient également flanquées d'un petit pavillon à cheminée à l'angle de la rue Neuve d'Argenson et du petit chemin de service. Un jardin d'un peu plus de 1 000 mètres carrés, fermé de murs, complétait l'ensemble à l'est ; le canal du Pontet bordait les murs du jardin de ce côté. Ce plan général correspondait parfaitement au programme d'une villa suburbaine : une petite maison avenante, aux lignes épurées, haute de seulement un rez-de-chaussée, mais surélevée et largement ouverte par de grandes fenêtres pour offrir de belles vues sur un agréable jardin d'agrément clôt.
Ces mêmes dispositions générales se retrouvent en 1819 (plan d'alignement), excepté au nord de la maison : les écuries et le pavillon d'angle ont disparu, remplacés par une cour dans laquelle prennent place un petit édicule adossé au mur de croupe nord de la maison et un bâtiment plus important orienté est-ouest, isolé au nord de la cour. Elles semblent identiques en 1831 lorsqu'est levé le premier plan cadastral de la commune. Toutefois, la propriété est alors divisée en deux parties, à l'alignement du mur de croupe de la maison. C'est sans doute à Jean-Charles-Joseph Gouzot, au cours du second quart du XIXe siècle, qu'il faut attribuer la campagne de travaux qui a vu l'érection d'un petit pavillon au sud-est de la maison avec, au même alignement sur le jardin, la création d'une longue aile de dépendances. La logique de cette campagne se comprend aisément : la propriété d'origine étant désormais divisée et la maison ayant perdu ses dépendances, le nouveau propriétaire se devait d'en créer de nouvelles.
Au sud, l'aile de dépendances (écurie, chai) se développe tout au long de l'ancien jardin ; des portes et fenêtres l'ouvrent de ce côté. À l'extrémité orientale de celle-ci subsiste un pavillon aujourd'hui en ruine ; il présente encore un fronton-pignon triangulaire souligné par un rang de génoise et une fenêtre (murée) au nord, ainsi qu'une grande arcade à claveaux en pierre de taille à l'est.
Ces dispositions semblent avoir été conservées jusqu'à récemment, seuls les garages contemporains (en parpaings de ciment) et le lent délabrement des bâtiments étant venus en altérer la belle homogénéité.
La maison
De plan massé double en profondeur, la maison est bâtie sur trois niveaux : un niveau de soubassement semi-enterré abritant deux caves à l'ouest et deux pièces de service à l'est, desservies par un vestibule central ; un rez-de-chaussée surélevé accueillant les anciennes pièces de réception et des bureaux, eux aussi desservis par un vestibule central ; et un étage-attique destiné aux chambres. La façade principale sur rue (ouest), symétrique, en pierre de taille, présente sept travées avec porte d'accès centrale surmontée d'un fronton en arc plein-cintre à décor de vélum ; les fenêtres du rez-de-chaussée, couvertes en arc segmentaire, possèdent un chambranle lisse continu en partie basse sur l'allège, avec appui mouluré en saillie. Côté jardin, la façade (est) est ouverte par six travées de fenêtres, la septième étant occultée par un petit pavillon carré disposé en retour d'équerre. Elle présente une maçonnerie de briques recouverte d'un enduit, seules les parties vives (le cadre des baies) étant en pierre de taille ; un perron en pierre de taille à volées convergentes permet de descendre au jardin. Le toit est couvert en tuile creuse.
A l'intérieur, la porte d'entrée débouche dans la cage d'un escalier en bois à jour central qui dessert tous les niveaux. Le niveau de soubassement comprend encore des lambris d'appui et des chambranles moulurés (cannelures) aux portes des pièces de service. Un décor peint au pochoir (une frise végétale et florale), court au-dessus du lambris sur l'enduit couvrant le reste du mur. Au rez-de-chaussée surélevé, le vestibule central possèdent encore deux grandes portes en plein-cintre à trumeau vitré : il dessert les pièces de réception et les bureaux du niveau, et permet de sortir directement au jardin par le perron extérieur. Le bureau (une ancienne pièce de réception) sud-ouest a conservé une grande partie de son décor intérieur : un plafond en stuc mouluré avec son porte-luminaire orné, une cheminée à manteau en marbre et hotte décorée – dans un registre amoureux : un couple d'oiseaux, une torchère embrasée, un arc et flèche, un carquois et des branches de laurier. Le bureau d'origine, au nord-ouest, conserve un grand meuble d'attache en bois (une bibliothèque et placards fermés par des portes) recreusé d'une grande arcade centrale qui abritait probablement un cabinet ; tous les murs accueillaient des tableaux (leurs empreintes subsistent sur le textile de couvrement) ; la cheminée est à manteau en marbre et hotte décorée de chapiteaux néo-Renaissance et frise de grappes et feuilles de vigne alternées dans l'entablement.
De la représentation en élévation datée de 1785 et d'une mention textuelle de 1791 – « une maison a rés-de-chaussée, écurie et jardins » [17] –, on comprend que la maison se composait à l'origine uniquement d'un rez-de-chaussée surélevé, directement couvert par un haut toit d'ardoises à brisis, doté d'épis de faîtage – la forte pente et la forme du toit représenté sur la vue suggèrent ce type de couverture. Les fenêtres couvertes en arc segmentaire du rez-de-chaussée, ainsi que leurs menuiseries à petits carreaux côté jardin et les pentures des volets en fer forgé et martelé, datent de cette première campagne de construction. Un texte du 22 fructidor an second [8 août 1794] apporte quelques précisions sur l'agencement des pièces de la maison à l'origine et sur la localisation des écuries : le « citoyen Goujot [sic pour Gouzot], cy-devant homme de loy » déclare être propriétaire d'« une maison composée de quatre chambres hautes, y compris la salle, avec les bas où est la cuisine et un salon, et une écurie à côté de la cour, dont le loyer est évalué la somme de quatre cent cinquante livres, y compris le bureau de Lafite [un officier de la Poste] » [18]. Le rez-de-chaussée surélevé comprend donc quatre chambres, la salle (sans doute la grande pièce sud-est desservie par le vestibule axial et aux fenêtres ouvrant sur le jardin) et leurs dégagements, le niveau de soubassement la cuisine, un salon et les caves. L'écurie devait être le bâtiment au nord de la maison visible en élévation sur le plan de 1785, ouvert sur la rue Neuve d'Argenson et flanqué d'un pavillon à l'angle du petit chemin de service.
La seconde campagne de travaux importante, menée par Jean-Charles-Joseph Gouzot entre 1833 et 1858, a permis de transformer la « petite villa suburbaine » en une véritable maison de ville, tout spécialement par l'ajout d'un étage-attique.
Protection / État de conservation / Intérêt
Protection
La maison est située dans le Site patrimonial remarquable de Bergerac (18/04/2018), dans la Zone de présomption de prescription archéologique (19/10/2004), ainsi que dans la zone protégée au titre des abords de monuments historiques (mise à jour le 28/12/2020).
État de conservation
L'état de conservation de la maison est préoccupant. Abandonnée depuis une vingtaine d'années, celle-ci s'est lentement dégradée : attaque de termites dans les bois, absence de couverture qui a permis l'infiltration des eaux de pluie ayant fini par éventrer les parquets et plafonds de tous les niveaux, principalement dans la partie nord. Certaines fenêtres de l'étage-attique sont ouvertes à tous vents, des mousses recouvrent le perron du jardin, le crépi qui protège la maçonnerie de la façade côté jardin est lacunaire. Par ailleurs, le décor intérieur a subi des dégradations ou a perdu une partie de ses éléments (les tableaux des hottes de cheminées ont disparu, certains lambris et chambranles ont été partiellement arrachés, soulèvements et pertes partielles des enduits intérieurs à décor au pochoir, etc.).
Les dépendances ne sont pas mieux loties : le pavillon sud-est, à l'extrémité de l'aile des dépendances, est aujourd'hui en ruine ; l'aile des dépendances a perdu une partie de son toit et le crépi qui protégeait ses murs – des trous dans la maçonnerie fragilisent dangereusement la stabilité du mur gouttereau, tout spécialement à l'emplacement d'une chaîne harpée.
Intérêt
Malgré cet état de conservation déplorable, la maison présente un intérêt patrimonial et historique indéniable, tant par son implantation et son intégration dans l'urbanisme de la ville, par son histoire liée à des personnalités de Bergerac, enfin par son architecture.
L'implantation et l'intégration dans l'urbanisme de la ville
Charles Petit, qui a décidé de bâtir a novo, aurait pu placer sa maison ailleurs dans la large parcelle de 1 400 mètres carrés qu'il possédait. Il aurait pu également construire selon une typologie différente, non sur rue mais en fond de cour ou sur le côté. Ses choix se sont au contraire portés pour une maison sur rue, exactement placée face à la place du Doublet. Ces choix s'expliquent aisément : ils ont permis de donner à voir aux habitants de Bergerac une belle façade principale en pierre de taille dans l'axe de la place du Doublet dont elle forme le « fond de scène ». Ce faisant, Charles Petit a aussi inscrit sa maison dans le cadre architectural plus large de la rue Neuve d'Argenson, qui connait au XVIIIe siècle des embellissements, ceux voulus par les édiles bergeracois, mais aussi ceux réalisés par les propriétaires de la rue qui rebâtissent également à neuf au même moment. Avec ces réalisations à laquelle elle est intimement liée, la maison est donc un produit du siècle des Lumières à Bergerac, ville qui s'ouvre alors sur l'extérieur, sur ses abords et la campagne environnante.
Des personnalités de Bergerac
Charles Petit (ca. 1713-1791), troisième consul de la ville de Bergerac et directeur des Postes aux Lettres, Jean-Baptiste Gouzot (1754-1822), commissaire du roi, président du Tribunal de Bergerac et maire de Paleyrac, et Jean Camille Gouzot (1830-après 1901), maire de Bergerac (de 1871 à 1875), sont les trois personnalités liées à la maison dont nous avons parlé jusqu'ici. À celles-ci il faut en ajouter une quatrième et dernière, celle qui lui a donné son nom : Jean Leydier (†1970), président du Tribunal de commerce de Bergerac, qui fut officier de l'Instruction publique (1940), chevalier de la Légion d'honneur (1954), membre de la Société historique et archéologique du Périgord (à partir de 1933) et l'auteur de plusieurs ouvrages et articles (Historique du tribunal de commerce de Bergerac, Bergerac, Impr. générale du Sud-Ouest, 1966 ; « Histoire de la Libération à Bergerac », Périgourdin de Bordeaux, septembre-octobre 1964, etc.). Il fut d'abord propriétaire de la maison mitoyenne sise au 28 rue Neuve d'Argenson, avant d'entrer en possession de celle du numéro 21 dans les années 1960.
L'architecture
Malgré son état de délabrement, la maison conserve une très grande partie de ses dispositions anciennes, beaucoup remontant à la première moitié du XIXe siècle, quelques-unes au XVIIIe siècle. Non seulement ses murs et ses principaux planchers, son perron à rampes droites convergentes descendant au jardin, mais aussi sa distribution, son décor intérieur (dont deux cheminées presque intégralement conservées, des lambris, des décors de porte-luminaire...), des éléments de second oeuvre (trumeaux vitrés de portes-fenêtres, menuiseries et pentures du XVIIIe siècle, chambranles moulurés, tapisseries anciennes, une cloison en bois vitrée...).
Par Xavier PAGAZANI, à Bordeaux, le 27 août 2021.
_______________________________________________________________________________________________________
Notes
* La majorité des informations archivistiques concernant la maison et Charles Petit nous ont été aimablement communiquées par Jeanne-Véronique Foussal de Belerd que je remercie vivement.
[1] Arch. départ. de la Dordogne, B 1837, 4 juillet 1739.
[2] Arch. départ. de la Dordogne, 3 E 7848 (étude Me Bouyges), 17 mai 1756.
[3] Arch. départ. de la Gironde, C 4240, Plan en vue cavalière (élévations rabattues de chaque côté de la rue) de la rue Neuve d’Argenson à Bergerac daté de 1785 [reproduit dans COMBET Michel (dir.), Histoire de Bergerac, p. 207].
[4] COMBET Michel (dir.), Histoire de Bergerac, p. 206.
[5] Arch. municipales de Bergerac, 1 G 3.2, Etats de sections de 1791 (16 registres), n° 70 : "M. Charles Petit, rue Neuve. Une maison, Ecurie et Jardins ; une maison a rés-de-chaussée, écurie… 167 l.t. 10 s. et jardin [de] 60 escats, 16 l.t. 13 = 184 l.t. 3 s."
[6] Arch. municipales de Bergerac, G 62.2, Contributions mobilières, année 1791, art. 836 : « Gouzot, commissaire du Roy avec un traitement de 1 800 l.t. » et art. 1018 : « Petit, Directeur des Postes aux Lettres, avec un traitement de 400 l.t. en pension chez son gendre. »
[7] Référence Geneanet : https://gw.geneanet.org/magstleo?lang=en&pz=charlotte+marie+anne&nz=de+lagausie&p=marie+jeanne+laurence&n=petit.
[8] Référence Geneanet : https://gw.geneanet.org/magstleo?n=gouzot&oc=1&p=jean+baptiste.
[9] Arch. départ. de la Dordogne, 3 E 8238 (étude Me Lespinasse), 19 novembre 1830.
[10] Arch. départ. de la Dordogne, 3 P 3/446, Plan cadastral ancien de la commune de Bergerac, section H, 2ème feuille (1831) ; Arch. municipales de Bergerac, 1 G/5, Etats de section du cadastre ancien (8 registres), n° 1612 (jardin), n° 1613 (maison et cour), n° 1614 (maison [neuve] de Jean-Charles-Joseph Gouzot) et n° 1614bis (jardin).
[11] Arch. départ. de la Dordogne, 63 P 68, folio 548 : Mr Gouzot, Jean-Charles, 26 ouvertures, 1858.
[12] Arch. départ. de la Dordogne, 1 Fi 1/24037/12.
[13] Voir la version numérisée par l'INHA : https://e-monument.net/patrimoine-monumental/and_pl001-blacons-de-croisees-ou-panneaux-de-portes/
[14] COMBET Michel (dir.), Histoire de Bergerac, p. 417. Référence Geneanet : https://gw.geneanet.org/magstleo?lang=en&pz=charlotte+marie+anne&nz=de+lagausie&p=jean+camille&n=gouzot.
[15] Arch. départ. de la Dordogne, 63 P 1428-2, Matrices cadastrales, case 706.
[16] Arch. départ. de la Dordogne, ms. Anonymes déposés aux Archives ; Arch. municipales de Bergerac, 5 BB 1.4. Référence Geneanet : https://gw.geneanet.org/magstleo?lang=en&pz=charlotte+marie+anne&nz=de+lagausie&p=charles&n=petit.
[17] Arch. municipales de Bergerac, 1 G3.2, Etats de sections de 1791 (16 registres), n° 70. La mention complète est la suivante : « M. Charles Petit, rue Neuve. Une maison, Ecurie et Jardins ; une maison a rés-de-chaussée, écurie… 167 l.t. 10 s. et jardin [de] 60 escats, 16 l.t. 13 = 184 l.t. 3 s. »
[18] Arch. municipales de Bergerac, G 62.6, 22 fructidor an second [8 août 1794], art. n° 1073. La mention complète est la suivante : « Le citoyen Goujot, cy-devant homme de loy, une maison composée de quatre chambres hautes, y compris la salle avec les bas ou est la cuisine et un salon, et une écurie à côté de la cour, dont le loyer est évalué la somme de quatre cent cinquante livres, y compris le bureau de Lafite [officie à la Poste], cy………….. 1600 l.t. »
| Type de dossier |
Dossier d'oeuvre architecture |
|---|---|
| Référence du dossier |
IA24005785 |
| Dossier réalisé par |
Pagazani Xavier
|
| Cadre d'étude |
|
| Aire d'étude |
Bergerac |
| Phase |
monographié |
| Date d'enquête |
2021 |
| Copyrights |
(c) Région Nouvelle-Aquitaine, Inventaire général du patrimoine culturel |
| Citer ce contenu |
Maison Leydier, Dossier réalisé par Pagazani Xavier, (c) Région Nouvelle-Aquitaine, Inventaire général du patrimoine culturel, https://www.patrimoine-nouvelle-aquitaine.fr/Default/doc/Dossier/235ef6f5-ad02-4fe7-83a9-78d116f94485 |
| Titre courant |
Maison Leydier |
|---|---|
| Dénomination |
maison |
| Appellation |
Maison Leydier |
| Parties constituantes non étudiées |
écurie puits chai |
| Statut |
|
|---|---|
| Intérêt |
|
Localisation
Adresse: Nouvelle-Aquitaine , Dordogne , Bergerac , 21 rue Neuve d'Argenson
Milieu d'implantation: en ville
Cadastre: 2021 DM 118, 1831 H2 1613 et 1612 (Parcelle 1613 (maison), parcelle 1612 (jardin))